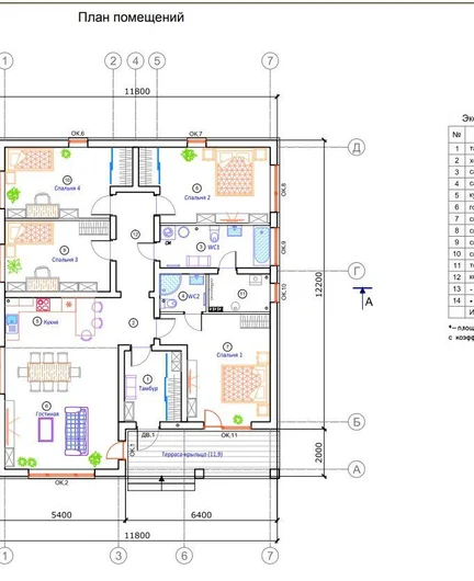
ДГ-130
Дом из газобетона на железо-бетонной плите с комбинированным фасадом из планкена из лиственницы и штукатурки "Короед". 4-е(!!!) спальни и просторная кухня-гостиная. Площадь помещений 130 кв. метров, открытая терраса 12 кв. метров. Стоимость от 7,9 млн. рублей



+2